Technical Support

Please click on a tab below for the specification for each type and gear option for Garador Up and Over, Sectional, Side-hinged, GaraRoll garage doors and FrontGuard front entrance doors.

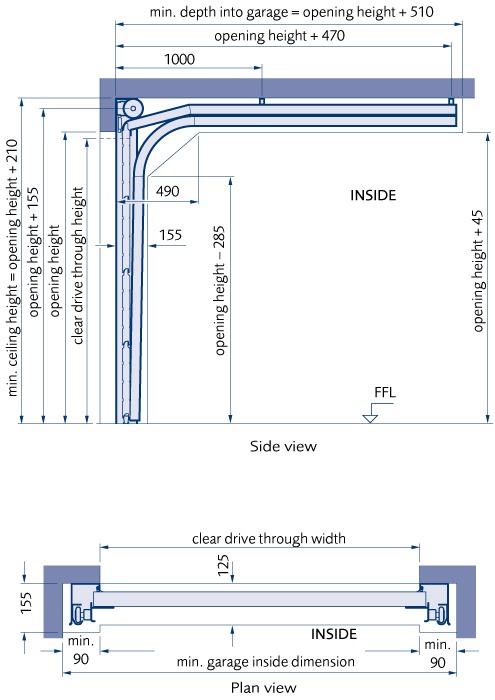
The canopy gear allows the door to travel in vertical tracks and is counterbalanced by an overhead torsion spring. The normal drive through is 40mm less than the opening width and 130mm less than the opening height.

In the open position, the door projects approximately one third of the door height, forming a canopy.

For doors fitted with an operator, please respect operator specifications.

Up and over steel canopy gear garage door specification

On Site Timber Frame

p50-behind-brickwork-timber-fixing

Behind Brickwork Fixing

 

p50-between-brickwork-timber-fixing

Between Brickwork Fixing


Factory pre-framed with steel box frame
The garage door is supplied factory fitted to a steel box section frame and is secured to the brickwork using just 7 fixings.

p50-behind-brickwork-steel-box-frame

Behind Brickwork Fixing
* width of anchor in this position

 

 p50-between-brickwork-steel-box-frame

Between Brickwork Fixing

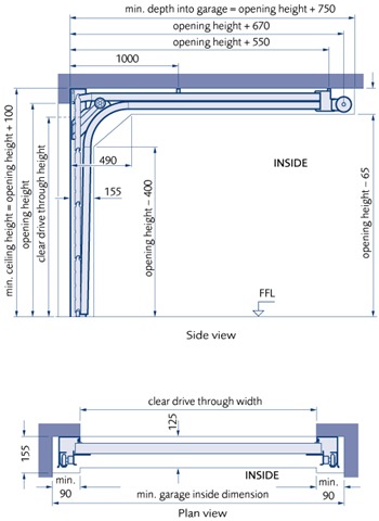
The retractable gear allows the door to be retracted inside the garage when opened by means of horizontal overhead tracks supported by wall or ceiling mounted suspension brackets. This gear is available as an option for single doors and comes as standard with double garage doors.

The nominal drive through clearance is 105mm less than the opening width and 110mm less than the opening height for single doors, and 140mm less than the opening height for double doors.

For doors fitted with an operator, please respect operator specifications.

p51-steel-retractable

On Site Timber Frame

p51-behind-brickwork-timber-frame

Behind Brickwork Fixing


p51-between-brickwork-timber-frame

Between Brickwork Fixing


The garage door is supplied factory fitted to a steel box section frame and is secured to the brickwork using just 7 fixings.

Factory pre-framed with steel box frame

p51-behind-brickwork-steel-frame

Behind Brickwork Fixing
* width of anchor in this position

 

p51-between-brickwork-steel-frame

Between Brickwork Fixing

Retractable Plus Gear

For any door up to a width of 2744mm in any of the three standard heights, Retractable Plus gear is available. This gear type creates a clear drive through width at the crucial wing mirror height.

p51-table

Door leaves supplied factory pre-framed ready for site-installation. Fixed leaf (right hand side when viewed from inside) fitted with tower bolts at top and bottom of inner leading edge. The floor will need to be finished and level for the bottom tower bolts to engage.

Side-hinged door factory pre-framed

p52-side-hinged-behind-brickwork

Behind Brickwork Fixing


p52-side-hinged-between-brickwork

Between Brickwork Fixing


The nominal drive through clearance is 124mm less than the opening width and 12mm less than the opening height.

Garage side door factory pre-framed

p52-garagesidedoor-behind-brickwork

Behind Brickwork Fixing
* width of anchor in this position

 

p52-garagesidedoor-between-brickwork

Between Brickwork Fixing

The nominal clear passage clearance is 74mm less than the opening width and 12mm less than the opening height.

Please click on the image below to enlarge.

p53-frame-dimensions-panel-doors

These doors come with tension spring fitting. With doors from the Premium range the tension springs can be replaced with torsion springs as an option. Tensions springs are suitable for low headroom installations. For a low headroom installation with torsion springs please order low headroom track separately (changing to a low headroom option is not available as a retrofit).


Minimum garage dimensions for manually operated doors

Headroom: 100mm
Sideroom: 90mm (each side)
Depth into garage: garage door height + 510mm
Clear passage height for manually operated doors: garage door height - 80mm



Minimum garage dimensions for doors with a GaraMatic operator

Headroom: 115mm
Sideroom: 90mm (each side)
Depth into garage:

  • for doors up to 2125mm high: 3200mm
  • for doors up to 2500mm high: 3450mm
  • for doors up to 3000mm high: 4125mm
Clear passage height for manually operated doors: garage door height - 30mm
p61-sectional-tension

These doors come with torsion springs as standard. For a low headroom installation with torsion springs please order low headroom track pack (changing to a low headroom option is not available as a retrofit).

Minimum garage dimensions for manually operated doors

Headroom: 210mm
Sideroom: 90mm (each side)
Depth into garage: garage door height + 510mm
Clear passage height for manually operated doors: garage door height - 50mm



Minimum garage dimensions for doors with a GaraMatic operator

Headroom: 210mm
Sideroom: 90mm (each side)
Depth into garage:

  • for doors up to 2125mm high: 3200mm
  • for doors up to 2500mm high: 3450mm
  • for doors up to 3000mm high: 4125mm
Clear passage height for manually operated doors: full garage door height
p62-sectional-torsion

These doors come with torsion springs as standard. For a low headroom installation with torsion springs please order low headroom track pack (changing to a low headroom option is not available as a retrofit).

Minimum garage dimensions for manually operated doors

Headroom: 100mm
Sideroom: 90mm (each side)
Depth into garage: garage door height + 510mm
Clear passage height for manually operated doors: garage door height - 100mm



Minimum garage dimensions for doors with a GaraMatic operator

Headroom: 115mm
Sideroom: 90mm (each side)
Depth into garage:

  • for doors up to 2125mm high: 3200mm
  • for doors up to 3000mm high: 4125mm
Clear passage height for manually operated doors: full garage door height
  • for doors up to 3000mm wide: garage door height - 30mm
  • for doors wider than 3000mm: garage door height - 80mm

p63-sectional-torsion-low-headroom

Boom for canopy door including canopy bow arm

p68-boom-canopy-bow-arm p68-boom-lintel-expansion
Lintel expansion bracket required for canopy doors fitted between the brickwork and under the lintel head.


Boom for retractable door
p68-boom-retractable

Boom for sectional door
p69-boom-1

K – Short Boom Total Length = 3200mm

M - Medium Boom Total Length = 3450mm

L - Large Boom Total Length = 4125mm

Maximum Door Height to suit Operator Booms

p69-boom-2

On horizontal doors the bow arm is to be fitted off centre

GaraRoll roller door specification - behind opening

Clear passage height =
clear height (ordering size)

  • 60mm for automated version
  • 140mm for manually operated version
Clear passage width = clear width (ordering size)
GaraRoll roller door specification - between opening

Clear passage height =
clear height (ordering size)

  • 60mm for automated version
  • 140mm for manually operated version
Clear passage width = clear width (ordering size)

FrontGuard door dimensions

p83-frontguard-overall-frame

Plan of door with side element

p83-plan-side-element-1



 

Plan view of door with side element

p83-plan-side-element-2

Plan view of door

p83-plan-1

Round style frame

p83-frontguard-roundstyle-frame

Side view of door

p83-frontguard-sideview

Quadrangular frame

p83-frontguard-quadrangular

Sizing Information

Understanding how to size and measure your new garage door is not always straightforward, which is why we have created a helpful section below with lots of sizing information and detail to help you specify the correct door size.

Up & over garage doors are measured as a nominal door size, which is the door size between the steel or timber frame, and can be fitted either between the brickwork or behind the reveals. Please see the table below for further details.

* No fitting clearance allowed. If door is fitted between the brickwork a minimum of 10mm clearance over the width and 5mm over the height should be added to the overall frame size when selecting the door.



  1 2 3 4

Size Code

Internal frame size
On-site timber frame
Width x Height
(mm x mm)

Pre-framed canopy door. Overall frame sizes shown*
Width x Height
(mm x mm)

Pre-framed retractable door. Overall frame sizes shown*
Width x Height
(mm x mm)

Frame kit for double door. Overall frame sizes shown*
Width x Height
(mm x mm)

6660 1984 x 1830 2094 x 1888 2124 x 1888 -
6663 1984 x 1905 2094 x 1963 2124 x 1963 -
6664 1984 x 1931 2094 x 1989 2124 x 1989 -
6666 1984 x 1981 2094 x 2039 2124 x 2039 -
6670 1984 x 2136 2094 x 2194 2124 x 2194 -
61064 2084 x 1931 2194 x 1989 2224 x 1989 -
61066 2084 x 1981 2194 x 2039 2224 x 2039 -
61070 2084 x 2136 2194 x 2194 2224 x 2194 -
7060 2134 x 1830 2244 x 1888 2274 x 1888 -
7063 2134 x 1905 2244 x 1963 2274 x 1963 -
7064 2134 x 1931 2244 x 1989 2274 x 1989 -
7066 2134 x 1981 2244 x 2039 2274 x 2039 -
7068 2134 x 2036 2244 x 2094 2274 x 2094 -
7070 2134 x 2136 2244 x 2194 2274 x 2194 -
7072 2134 x 2186 - 2274 x 2244 -
7076 2134 x 2286 - 2274 x 2344 -
7163 2170 x 1905 2280 x 1963 2310 x 1963 -
7164 2170 x 1931 2280 x 1989 2310 x 1989 -
7166 2170 x 1981 2280 x 2039 2310 x 2039 -
7168 2170 x 2036 2280 x 2094 2310 x 2094 -
7170 2170 x 2136 2280 x 2194 2310 x 2194 -
7172 2170 x 2186 - 2310 x 2244 -
7176 2170 x 2286 - 2310 x 2344 -
7364 2224 x 1931 2334 x 1989 2364 x 1989 -
7366 2224 x 1981 2334 x 2039 2364 x 2039 -
7370 2224 x 2136 2334 x 2194 2364 x 2194 -
7563 2259 x 1905 2369 x 1963 2399 x 1963 -
7564 2259 x 1931 2369 x 1989 2399 x 1989 -
7566 2259 x 1981 2369 x 2039 2399 x 2039 -
7568 2259 x 2036 2369 x 2094 2399 x 2094 -
7570 2259 x 2136 2369 x 2194 2399 x 2194 -
7572 2259 x 2186 - 2399 x 2244 -
7576 2259 x 2286 - 2399 x 2344 -
7663 2284 x 1905 2394 x 1963 2424 x 1963 -
7664 2284 x 1931 2394 x 1989 2424 x 1989 -
7666 2284 x 1981 2394 x 2039 2424 x 2039 -
7668 2284 x 2036 2394 x 2094 2424 x 2094 -
7670 2284 x 2136 2394 x 2194 2424 x 2194 -
7672 2284 x 2186 - 2424 x 2244 -
7676 2284 x 2286 - 2424 x 2344 -
8063 2439 x 1905 2549 x 1963 2579 x 1963 -
8064 2439 x 1931 2549 x 1989 2579 x 1989 -
8066 2439 x 1981 2549 x 2039 2579 x 2039 -
8068 2439 x 2036 2549 x 2094 2579 x 2094 -
8070 2439 x 2136 2549 x 2194 2579 x 2194 -
8072 2439 x 2186 - 2579 x 2244 -
8076 2439 x 2286 2579 x 2344 -
8666 2590 x 1981 - 2730 x 2039 -
8670 2590 x 2136 - 2730 x 2194 -
8676 2590 x 2286 - 2730 x 2344 -
9066 2744 x 1981 - 2884 x 2039 -
9070 2744 x 2136 - 2884 x 2194 -
9076 2744 x 2286 - 2884 x 2344 -
1066 3049 x 1981 - 3189 x 2039 -
1070 3049 x 2136 - 3189 x 2194 -
1076 3049 x 2286 - - 3189 x 2344
1166 3354 x 1981 - - 2494 x 2039
1170 3354 x 2136 - - 3494 x 2194
1176 3354 x 2286 - - 3494 x 2344
1266 3659 x 1981 - - 3799 x 2039
1270 3659 x 2136 - - 3799 x 2194
1276 3659 x 2286 - - 3799 x 2344
1366 3964 x 1981 - - 4104 x 2039
1370 3964 x 2136 - - 4104 x 2194
1376 3964 x 2286 - - 4104 x 2344
1466 4269 x 1981 - - 4409 x 2039
1470 4269 x 2136 - - 4409 x 2194
1566 4574 x 1981 - - 4714 x 2039
1570 4574 x 2136 - - 4714 x 2194
1666 4879 x 1981 - - 5019 x 2039
1670 4879 x 2136 - - 5019 x 2194

Sectional doors are designed to be fitted behind the reveals and the door size would therefore normally be the same as the brickwork opening size.
Sectional doors can be fitted between the reveals, please seek further advice.

GaraRoll roller garage doors are made to order and then fitted behind the reveals. For size and pricing information, please use your structural opening sizes.